Email us Call us

333 W Continental Vista Place

$320,000
333 W Continental Vista Place, Green Valley, AZ 85614
333 W Continental Vista Place

333 W Continental Vista Place

$320,000

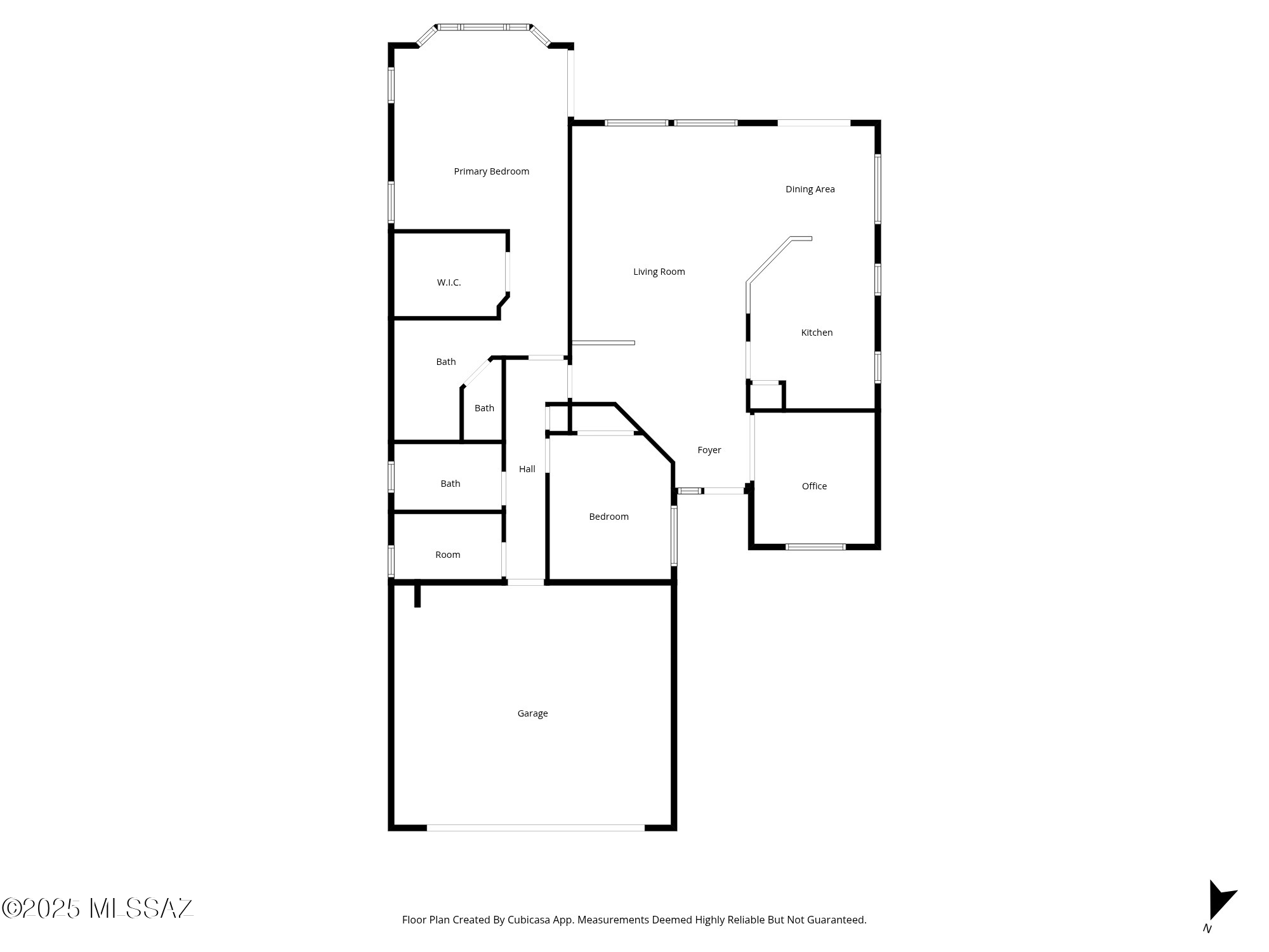
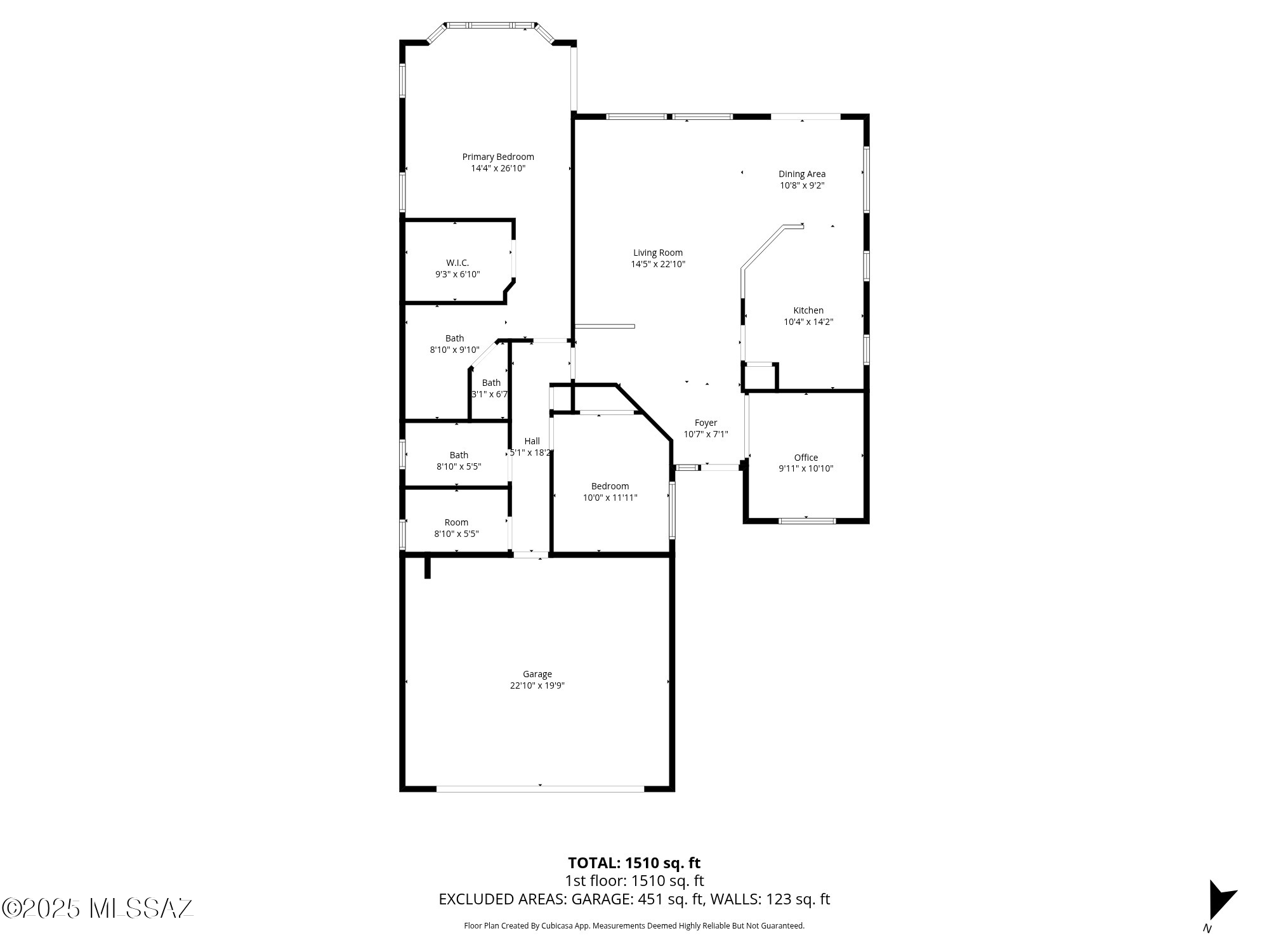
Welcome to this inviting 2-bedroom plus den home in the gated 55+ community of Sunrise Pointe Vistas. Tucked away on a quiet cul-de-sac, this residence offers a comfortable great room floor plan with tile in the main living areas and carpeted bedrooms for added warmth. Two spacious bedrooms are complemented by a versatile den or home office, along with a dedicated workshop, craft, or storage room--perfect for hobbies and organization. The low-maintenance backyard features mature shrubs and blooming rose bushes, creating a peaceful outdoor retreat. Enjoy access to all Green Valley Recreation amenities, including fitness centers, pools, classes, and social activities. Ideal for full-time living or a lock-and-leave seasonal getaway.
Jeni Jankowski
Jeni Jankowski Contact

Features & Amenities

Interior

Total Bedrooms 2
Total Bathrooms 2
Full Bathrooms 2
Laundry Room Dryer, Washer, In Garage, Gas Dryer Hookup
Flooring Carpet, Ceramic Tile
Fireplace None
Appliances Disposal, Dishwasher, Electric Range, Exhaust Fan, Microwave, Refrigerator
Other Interior Features High Ceilings, Walk-In Closet(s), Vaulted Ceiling(s)

Exterior

Garage Space 2.0
Water Source Public, Other
Utilities Sewer Connected
POOL None
ROOF Tile
Lot Features Decorative Gravel, Shrubs, Cul-De-Sac, North/South Exposure
Parking Electric Door Opener
Heat type Other, Forced Air
Air Conditioning Central Air, Ceiling Fans
Disability Features Wide Hallways, Door Levers
HOA Amenities None
Security Features Smoke Detector(s), Wrought Iron Security Door
Other Exterior Features None

Area & Lot

Status For Sale
LIVING SPACE 1,542 Sq.Ft.
TOTAL AREA 1,542 Sq.Ft.
LOT SIZE 6,055 Sq.Ft.
MLS® ID 22532051
Type Residential
Year Built 2000
Architecture Styles Contemporary
View Description Residential
ELEMENTARY SCHOOL Continental
MIDDLE SCHOOL Continental
HIGH SCHOOL Optional
School District Continental Elementary School District #39

Financial

SALES PRICE $320,000
REAL ESTATE TAXES $1,650/yr
HOA Fees $31/yr
Zoning Pima County - CR5
image

Schedule a Showing

We would love to show you our beautiful property. Please select your preferred date and time below. An agent will be in touch shortly to confirm your appointment.

Schedule a Showing

We would love to show you our beautiful property. Please select your preferred date and time below. An agent will be in touch shortly to confirm your appointment.

Thank you for your interest in 333 W Continental Vista Place, Green Valley, AZ 85614. We are reviewing your request and will be in touch shortly!

Mortgage Calculator

Estimate your monthly mortgage payment, including the principal and interest, property taxes, and HOA. Adjust the values to generate a more accurate rate.

All estimates are provided for informational purposes only. Actual amounts may vary.
$0,000 Your Payment 20 15 65
$0,000 Your Payment

Work With Us

Dedicated to you. It has been always our mission to bring our clients home. Contact us today!

CONTACT US

Follow Me on Instagram